Luxury houses - 23477jd
Floor Plan

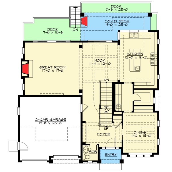
Main Level

2nd Floor



Basement


Plan details

Square Footage Breakdown

  • Total Heated Area:3,714 sq. ft.

  • Lower Level:1,443 sq. ft.

  • 1st Floor:1,284 sq. ft.

  • 2nd Floor:987 sq. ft.

    Beds/Baths

    • Bedrooms:4

    • Full Bathrooms:3 or 4

    • Half Bathrooms:1

      Foundation Type

      • Standard Foundations:Walkout

      Exterior Walls

      • Standard Type(s):2x6


      Dimensions

      • Width:45' 0"

      • Depth:48' 4"

      • Max Ridge Height:26' 0"

      Garage

      • Type:Attached

      • Area:406 sq. ft.

      • Count:2 cars

      • Entry Location:Front

      Ceiling Heights

      • Floor / Height:Lower Level / 9' 0"First Floor / 10' 0"Second Floor / 7' 0"

      RoomTypeHeight
      OfficeVaulted12' 0"
      Master BedroomVaulted12' 9"
      Great RoomVaulted24' 0"

      Roof Details

      • Primary Pitch:12 On 12

      • Framing Type:Stick