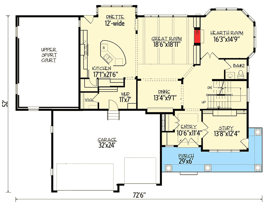
Main Level

2nd Floor

Lower Level

Total Heated Area:5,458 sq. ft.
Lower Level:1,587 sq. ft.
1st Floor:2,087 sq. ft.
2nd Floor:1,784 sq. ft.
Sports Court:518 sq. ft.
Basement Unfinished:119 sq. ft.Beds/Baths
Bedrooms:5
Full Bathrooms:5
Half Bathrooms:1
Standard Foundations:Walkout
Standard Type(s):2x6
Width:72' 6"
Depth:52' 0"
Type:Attached
Area:745 sq. ft.
Count:3 cars
Entry Location:Front
Floor / Height:Lower Level / 8' 4"First Floor / 9' 0"Second Floor / 9' 0"
Primary Pitch:12 On 12
Secondary Pitch:12 On 14
Framing Type:Truss