Luxury houses - 73402HS
Floor Plan

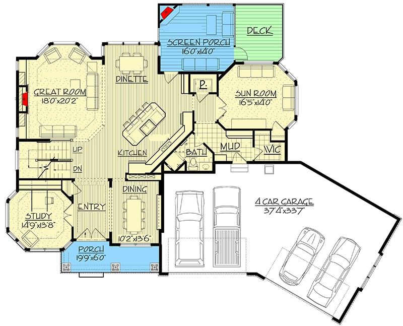
Main Level

2nd Floor

Optional Lower Level


Plan details

Square Footage Breakdown

  • Total Heated Area:3,601 sq. ft.

  • 1st Floor:1,816 sq. ft.

  • 2nd Floor:1,785 sq. ft.

  • Screened Porch:219 sq. ft.

  • Bonus:327 sq. ft.

  • Optional Lower Level:1,547 sq. ft.

  • Basement Unfinished:181 sq. ft.

Beds/Baths

  • Bedrooms:3 or 4

  • Full Bathrooms:3 or 4

  • Half Bathrooms:1

Foundation Type

  • Standard Foundations:Walkout

Exterior Walls

  • Standard Type(s):2x6


Dimensions

  • Width:81' 5"

  • Depth:66' 1"

  • Max Ridge Height:35' 0"

Garage

  • Type:Attached

  • Area:1021 sq. ft.

  • Count:4 cars

  • Entry Location:Front

Ceiling Heights

  • Floor / Height:Lower Level / 9' 0"First Floor / 9' 0"Second Floor / 8' 0"

Roof Details

  • Framing Type:Truss