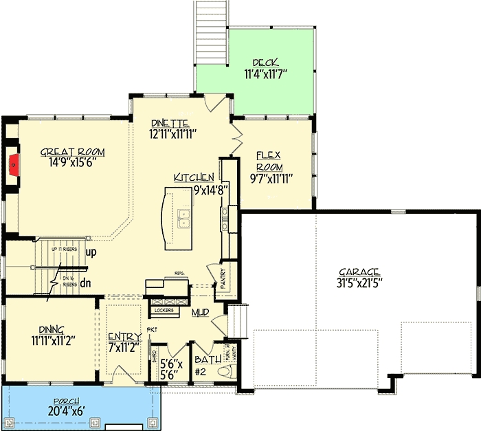
Main Level

2nd Floor

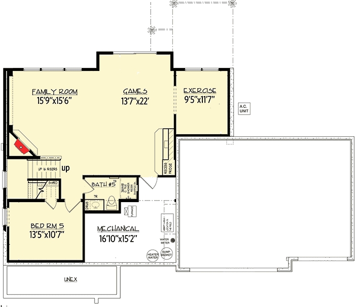
Lower Level

Square Footage Breakdown
Total Heated Area:2,885 sq. ft.
1st Floor:1,312 sq. ft.
2nd Floor:1,573 sq. ft.
Optional Lower Level:1,100 sq. ft.
Basement Unfinished:223 sq. ft.
Bedrooms:4 or 5
Full Bathrooms:3 or 4
Half Bathrooms:1
Standard Foundations:Walkout
Standard Type(s):2x6
Dimensions
Width:64' 0"
Depth:45' 0"
Max Ridge Height:33' 0"
Type:Attached
Area:750 sq. ft.
Count:3 cars
Entry Location:Front
Floor / Height:Lower Level / 8' 0"First Floor / 9' 0"Second Floor / 8' 0"
| Room | Type | Height |
|---|---|---|
| Entry | Raised | |
| Master Bedroom | Raised |
Primary Pitch:8 On 12
Secondary Pitch:11 On 12
Framing Type:Truss