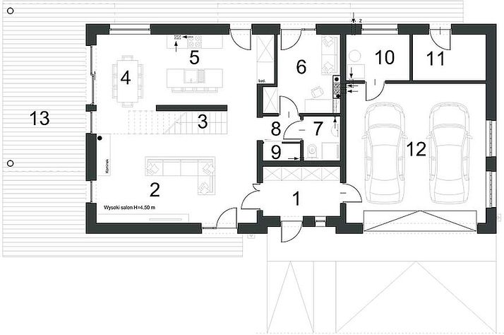
Ground floor

1. Wiatrołap7,24 m2
2. Pokój dzienny31,20 m2
3. Schody3,06 m2
4. Jadalnia7,95 m2
5. Kuchnia15,26 m2
6. Pokój9,72 m2
7. Łazienka3,09 m2
8. Korytarz1,82 m2
9. Pom. gospodarcze1,23 m2
10. Pom. gospodarcze5,62 m2
11. Pom. gospodarcze6,36 m2
12. Garaż dwustanowiskowy36,59 m2
13. Taras(63,04 m2)
Razem129,14 m2
1st floor

1. Korytarz9,35 m2
2. Pokój11,22 m2
3. Garderoba6,55 m2
4. Łazienka10,33 m2
5. Pom. gospodarcze4,84 m2
6. Pokój14,02 m2
7. Pokój11,02 m2
8. Taras(52,52 m2)
Razem67,33 m2
If you need more information, please feel free to contact us.
Email: vino@jncnhomes.com