Ground floor

1. Wiatrołap5,84 m2
2. Garderoba6,56 m2
3. Kotłownia4,68 m2
4. Spiżarnia4,43 m2
5. Pokój dzienny + kuchnia + jadalnia71,98 m2
6. Korytarz23,34 m2
7. Pokój27,19 m2
8. Łazienka4,46 m2
9. Łazienka4,52 m2
10. Pokój16,41 m2
11. Pom. gospodarcze11,31 m2
12. Garaż dwustanowiskowy41,35 m2
13. Taras(122,03 m2)
Razem222,07 m2
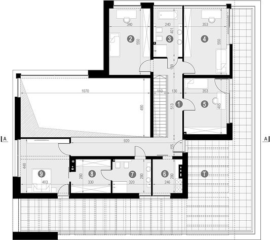
1st floor

1. Korytarz27,30 m2
2. Pokój18,70 m2
3. Łazienka9,58 m2
4. Pokój19,41 m2
5. Pokój16,37 m2
6. Pom. gospodarcze6,54 m2
7. Łazienka8,92 m2
8. Garderoba8,83 m2
9. Pokój18,05 m2
10. Taras(96,76 m2)
Razem133,70 m2
If you need more information, please feel free to contact us.
Email: vino@jncnhomes.com