Ground floor

1. Wiatrołap4 m2
2. Garderoba3,88 m2
3. Hall + schody11,95 m2
4. Pokój17,11 m2
5. Pokój dzienny + jadalnia42,51 m2
6. Kuchnia10,80 m2
7. Spiżarnia2,30 m2
8. Łazienka3,44 m2
9. Kotłownia6 m2
10. Pom. gospodarcze8,92 m2
11. Garaż dwustanowiskowy35,70 m2
12. Taras(16,08 m2)
13. Taras(109,84 m2)
Razem146,61 m2
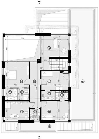
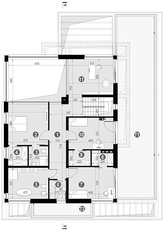
1st floor

1. Hall + schody20,03 m2
2. Pokój18,34 m2
3. Łazienka4,12 m2
4. Garderoba4,10 m2
5. Łazienka13,36 m2
6. Pom. gospodarcze3,35 m2
7. Pokój15,29 m2
8. Garderoba2,91 m2
9. Garderoba3,66 m2
10. Pokój15,08 m2
11. Antresola17,66 m2
12. Taras(72,78 m2)
13. Taras(8,11 m2)
Razem117,90 m2
If you need more information, please feel free to contact us.
Email: vino@jncnhomes.com