Ground floor

1. Wiatrołap5,17 m2
2. Garderoba5,85 m2
3. Łazienka6 m2
4. Spiżarnia4,65 m2
5. Kuchnia14,19 m2
6. Jadalnia23,58 m2
7. Pokój dzienny34,06 m2
8. Pokój15,36 m2
9. Kotłownia + pomieszczenie gospodarcze7,02 m2
10. Korytarz15,84 m2
11. Pom. gospodarcze13,23 m2
12. Garaż dwustanowiskowy41,31 m2
13. Taras(90,60 m2)
Razem186,26 m2
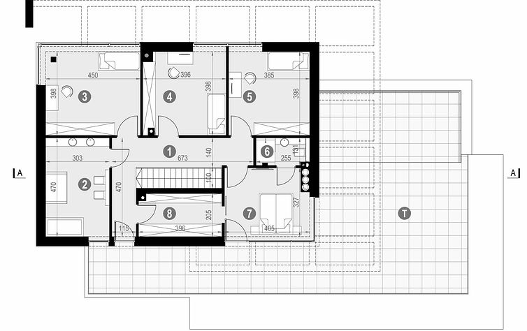
1st floor

1. Korytarz15,37 m2
2. Łazienka14,24 m2
3. Pokój17,84 m2
4. Pokój15,42 m2
5. Pokój15,32 m2
6. Łazienka3,26 m2
7. Pokój12,75 m2
8. Garderoba7,99 m2
9. Taras(91,75 m2)
Razem102,19 m2
If you need more information, please feel free to contact us.
Email: vino@jncnhomes.com