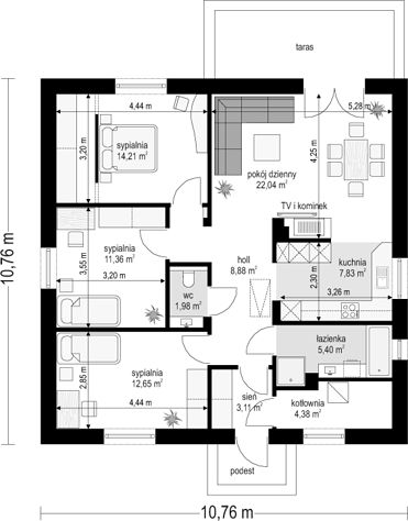
Ground floor

1. Wiatrołap3,11 m2
2. Pokój12,65 m2
3. Pokój11,36 m2
4. Wc1,98 m2
5. Pokój14,21 m2
6. Pokój dzienny + jadalnia22,04 m2
7. Kuchnia7,83 m2
8. Hall8,88 m2
9. Łazienka5,40 m2
10. Kotłownia4,38 m2
Razem91,84 m2
Attic

1. Strych34,83 m2 (96,83 m2)
Razem34,83 m2 (96,83 m2)
If you need more information, please feel free to contact us.
Email: vino@jncnhomes.com