Ground floor

1. Wiatrołap3,37 m2
2. Hall9,36 m2
3. Spiżarnia1,60 m2
4. Kuchnia9,61 m2
5. Pokój dzienny + jadalnia42,09 m2
6. Wc2 m2
7. Pom. gospodarcze6,39 m2
8. Kotłownia6,28 m2
9. Garaż jednostanowiskowy20,02 m2
Razem100,72 m2
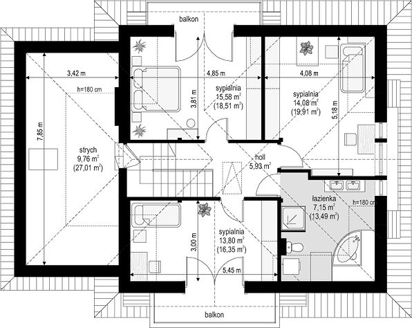
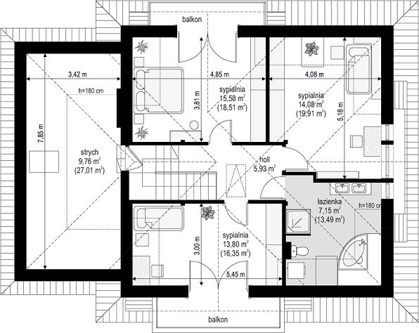
Attic

1. Strych9,76 m2 (27,01 m2)
2. Pokój15,58 m2 (18,51 m2)
3. Hall5,93 m2
4. Pokój13,80 m2 (16,35 m2)
5. Łazienka7,15 m2 (13,49 m2)
Razem52,22 m2 (81,29 m2)
If you need more information, please feel free to contact us.
Email: vino@jncnhomes.com