Ground floor

1. Wiatrołap3,79 m2
2. Hall10,42 m2
3. Kuchnia10,32 m2
4. Spiżarnia1,83 m2
5. Pokój dzienny + jadalnia30,40 m2
6. Pokój11,77 m2
7. Wc1,73 m2
8. Kotłownia3,88 m2
9. Garaż jednostanowiskowy21,24 m2
Razem95,38 m2
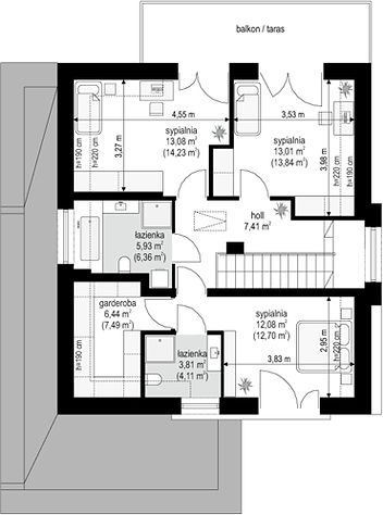
Attic

1. Hall7,41 m2
2. Pokój13,01 m2 (13,84 m2)
3. Pokój13,08 m2 (14,23 m2)
4. Łazienka5,93 m2 (6,36 m2)
5. Garderoba6,44 m2 (7,49 m2)
6. Łazienka3,81 m2 (4,11 m2)
7. Pokój12,08 m2 (12,70 m2)
Razem61,76 m2 (66,14 m2)
If you need more information, please feel free to contact us.
Email: vino@jncnhomes.com