House Bachus 5 was created in imitation of the famous Bachus project. Unlike the original version, the design has more rooms, a larger area, a basement. The Bachus 5 house plan is suitable for a medium-wide plot of land. The house has a simple shape, so its implementation will not require too much financial resources. Glazing provided in the bay will give the interior more spaciousness. It is intended for investors who have a plot of land that allows for the implementation of a free-standing project. The project provides for a double garage in the line of the building. It is also an interesting proposition for people looking for a house with a tent roof that perfectly protects the building against unfavorable weather. The Bachus 5 project is a one-story house with an attic, thanks to which the household members can enjoy greater privacy. The basement included in the project will be appreciated by people for whom functional solutions are of particular importance. The house design is characterized by a spacious living area. A big advantage of the kitchen closed to the living room is the clear division of rooms. Thanks to this solution, the household members can pursue their cooking passion in peace. There is a table in the kitchen that makes it more functional. The architect also provided a place for a dining room, thanks to which shared meals will be an excellent opportunity to talk in a family atmosphere. Additionally, the living room has a fireplace, which gives the interior a unique atmosphere. The eight bedrooms included in the house are the optimal option for a large family. The space can also be used as a guest room or office. The terrace designed by the house is a perfect place to relax. The brick technology recommended by the architect ensures durability and solidity of the structure. Bachus 5 will satisfy investors who appreciate the features of a traditional style, so it will look great regardless of the area.
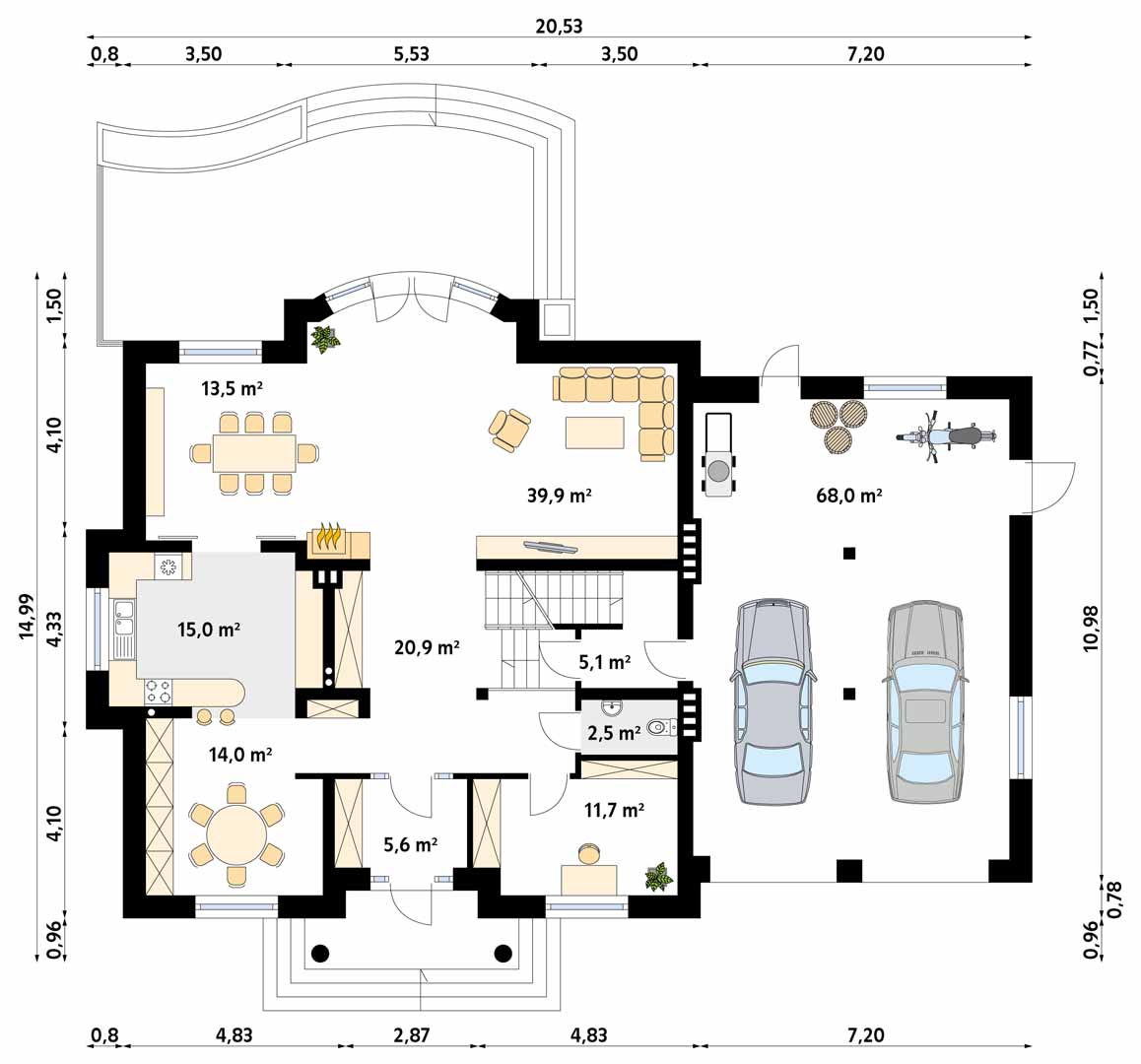
Ground floor

1. Wiatrołap5,60 m2
2. Hall20,90 m2
3. Pokój14 m2
4. Kuchnia15 m2
5. Jadalnia13,50 m2
6. Pokój dzienny39,90 m2
7. Pokój11,70 m2
8. Wc2,50 m2
9. Korytarz5,10 m2
10. Garaż dwustanowiskowy68 m2
Razem196,20 m2
Second floor

1. Hall23,50 m2
2. Pokój16,50 m2
3. Garderoba2,10 m2
4. Pokój18,20 m2
5. Garderoba3,90 m2
6. Pokój14,20 m2
7. Łazienka11 m2
8. Wc2,60 m2
9. Pokój17,40 m2
10. Garderoba3,90 m2
11. Pokój38,10 m2
12. Łazienka6,80 m2
13. Garderoba4,80 m2
Razem163 m2
If you need more information, please feel free to contact us.
Email: vino@jncnhomes.com