Modern houses
LK&1110
PLAN DESCRIPTION
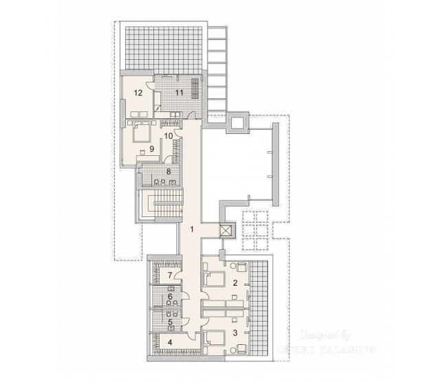
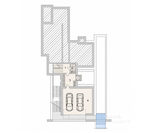
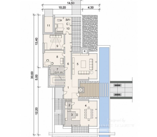
FLOOR PLANS

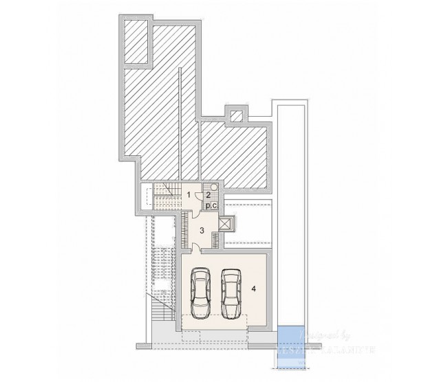
Basement

Ground floor

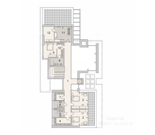
Floor


FULL SPECS & FEATURES
1. Usable area322,88 m²
2. Basement area72,54 m²
3. Additional area8,32 m²
4. Total surface642,5 m²
5. Building area274,87 m²
6. Net volume1298,53 m³
7. Gross volume2398,93 m³
8. Building height11,1 m
9. Roof angle20 °
10. Roof area217,67 m²
11. Сeiling height2,70/2,50 m
12. Minimum plot size25,35 x 39,1 m


If you need more information, please feel free to contact us.
Email: vino@jncnhomes.com