Modern houses
LK&1451
PLAN DESCRIPTION
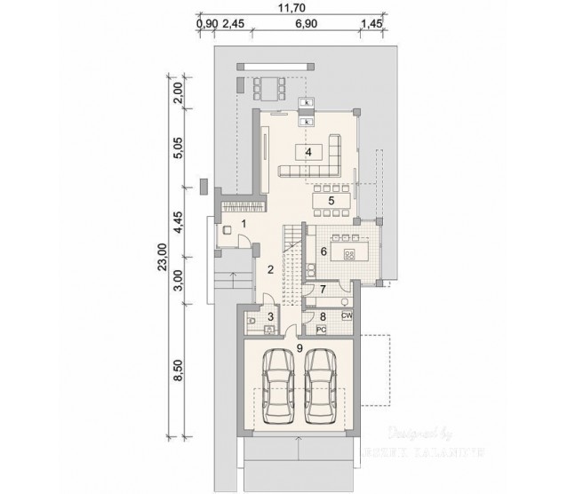
FLOOR PLANS

Ground floor

Floor


FULL SPECS & FEATURES
1. Usable area240,09 m²
2. Area garage40,6 m²
3. Total surface308,94 m²
4. Building area184,44 m²
5. Net volume710,05 m³
6. Gross volume885,14 m³
7. Building height7,65 m
8. Сeiling height2,7 m
9. Minimum plot size30,9 x 18,8 m


If you need more information, please feel free to contact us.
Email: vino@jncnhomes.com