Traditional houses
LK&710
PLAN DESCRIPTION
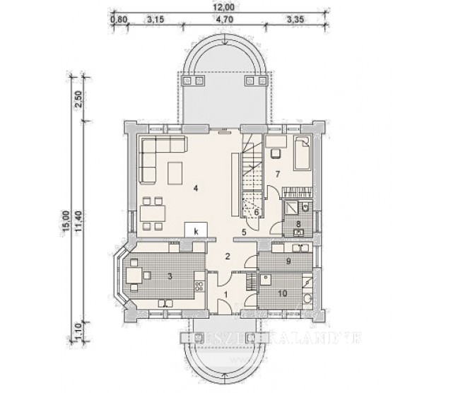
FLOOR PLANS

Ground floor

Attic


FULL SPECS & FEATURES
1. Usable area165,23 m²
2. Total surface262 m²
3. Building area141,5 m²
4. Net volume492 m³
5. Gross volume863,58 m³
6. Energy for heating10,38 kWh/m²*year
7. Building height9,07 m
8. Attic wall height0,83 m
9. Roof angle47/60/30 °
10. Roof area220 m²
11. Сeiling height2,7 m
12. Minimum plot size19,8 x 22,85 m


If you need more information, please feel free to contact us.
Email: vino@jncnhomes.com