Traditional houses
LK&1176
PLAN DESCRIPTION
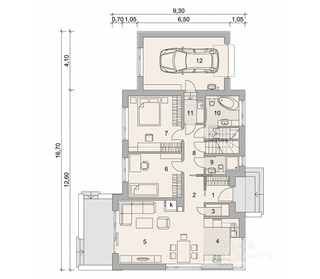
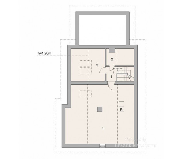
FLOOR PLANS

Ground floor

Attic


FULL SPECS & FEATURES
1. Usable area80,23 m²
2. Area garage2,49 m²
3. Additional area21,2 m²
4. Total surface250,79 m²
5. Building area138,72 m²
6. Net volume454,6 m³
7. Gross volume725 m³
8. Building height7,12 m
9. Attic wall height0,41 m
10. Roof angle35 °
11. Roof area216,6 m²
12. Сeiling height2,65 m
13. Minimum plot size17,3 x 23,7 m


If you need more information, please feel free to contact us.
Email: vino@jncnhomes.com