Traditional houses
LK&1179
PLAN DESCRIPTION
FLOOR PLANS

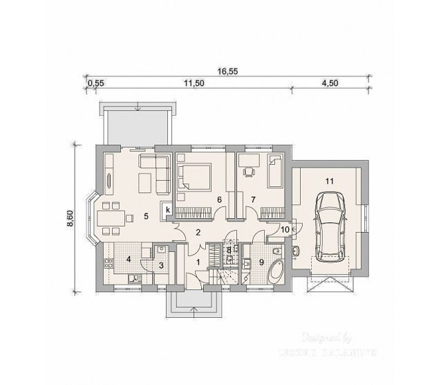
Ground floor

Attic


FULL SPECS & FEATURES
1. Usable area75,38 m²
2. Area garage24,18 m²
3. Attic area16,86 m²
4. Additional area1,17 m²
5. Total surface260,53 m²
6. Building area131,03 m²
7. Net volume344 m³
8. Gross volume574 m³
9. Building height6,93 m
10. Attic wall height0,24 m
11. Roof angle35 °
12. Roof area217,16 m²
13. Сeiling height2,59 m
14. Minimum plot size16,6 x 24,55 m


If you need more information, please feel free to contact us.
Email: vino@jncnhomes.com