Traditional houses
LK&1289
PLAN DESCRIPTION
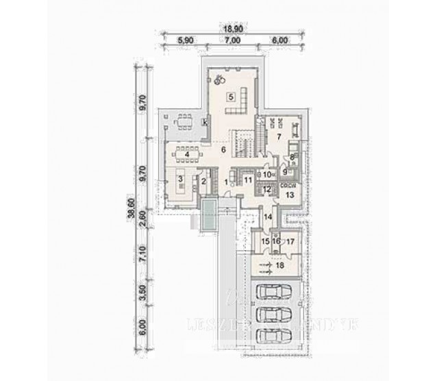
FLOOR PLANS

Ground floor

Attic


FULL SPECS & FEATURES
1. Usable area306,89 m²
2. Additional area41,28 m²
3. Total surface465,09 m²
4. Building area328,02 m²
5. Net volume1039,88 m³
6. Gross volume1255,74 m³
7. Building height10,4 m
8. Roof angle34 °
9. Сeiling height2,7 m
10. Minimum plot size45,6 x 26,9 m


If you need more information, please feel free to contact us.
Email: vino@jncnhomes.com