Traditional houses
LK&1386
PLAN DESCRIPTION
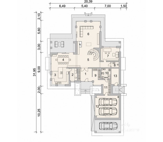
FLOOR PLANS

Ground floor

Floor


FULL SPECS & FEATURES
1. Usable area282,97 m²
2. Area garage36 m²
3. Additional area8,86 m²
4. Total surface552,64 m²
5. Building area291,33 m²
6. Net volume1020,05 m³
7. Gross volume1428,3 m³
8. Building height10,21 m
9. Roof angle35 °
10. Сeiling height2,82 m; 3,03 m
11. Minimum plot size37,1 x 26,9 m


If you need more information, please feel free to contact us.
Email: vino@jncnhomes.com