Barnhouses
LK&1464
PLAN DESCRIPTION
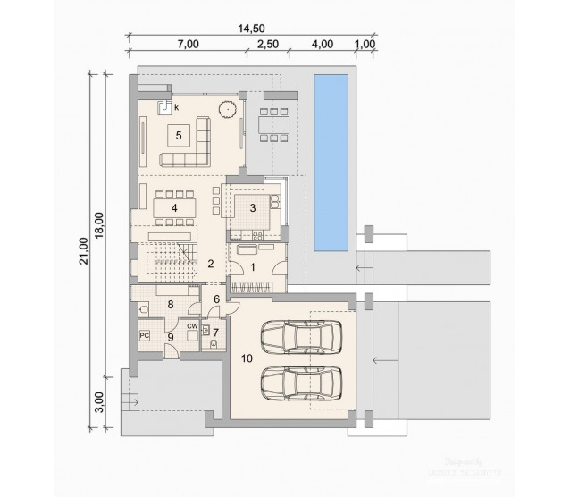
FLOOR PLANS

Ground floor

Attic


FULL SPECS & FEATURES
1. Usable area170,57 m²
2. Area garage49,63 m²
3. Total surface326,4 m²
4. Building area214,85 m²
5. Net volume794,61 m³
6. Gross volume988,07 m³
7. Building height9,05 m
8. Roof angle42 °
9. Сeiling height2,7 m
10. Minimum plot size27 x 21,5 m


If you need more information, please feel free to contact us.
Email: vino@jncnhomes.com