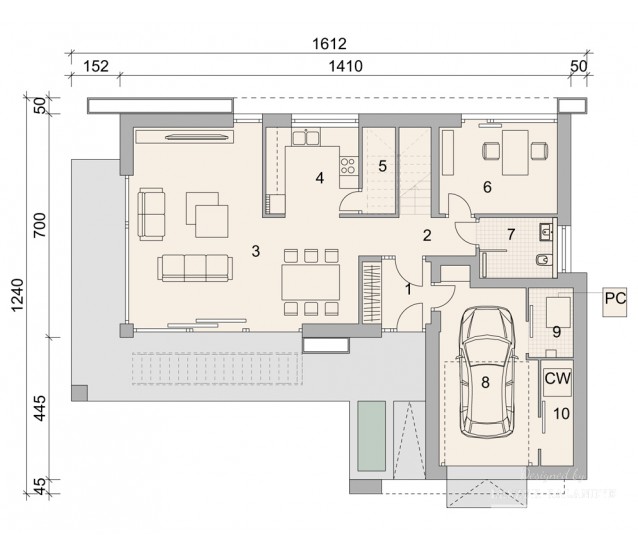
Ground floor
Attic
If you need more information, please feel free to contact us.Email: vino@jncnhomes.com